
サイエンスホームで人気の平屋、ロフトタイプ
シングルライフやセカンドライフを楽しみたい方におススメの1階建てプラン。構造的にもっとも強く暮らしやすい平屋は、離れや隠れ家、小家族にも人気です。
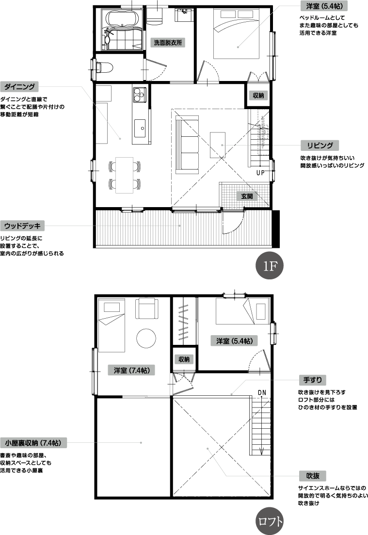
2~4人家族にマッチした1.5階建てのロフトプラン。
吹き抜け仕様でシンプル動線の間取りは、コンパクトなのに充分な広さが魅力です。





真壁づくりの家”は、柱や梁といった家の構造材が現しになった日本の伝統工法です。
木に囲まれている室内は、「見て」「触って」「感じる」ことができる『温もり&リラックス空間』。
その構造材には、数ある木材の中でも特に優れた日本のひのき材を85%以上で使用しています。
「日本の伝統工法×日本のひのき」のベストマッチングが生み出した新商品 『真壁づくり×オール国産ひのき』は、
ストレス社会の現代でも家族が癒されて休息できる、まるでひのきの森の中にいる気分を味わえる住まいなのです。
サイエンスホームのこだわりの家づくり

平屋タイプ

ロフトタイプ





![ハヤタホーム[公式]](https://hayatahome.com/wp-content/uploads/2022/10/logo.png)